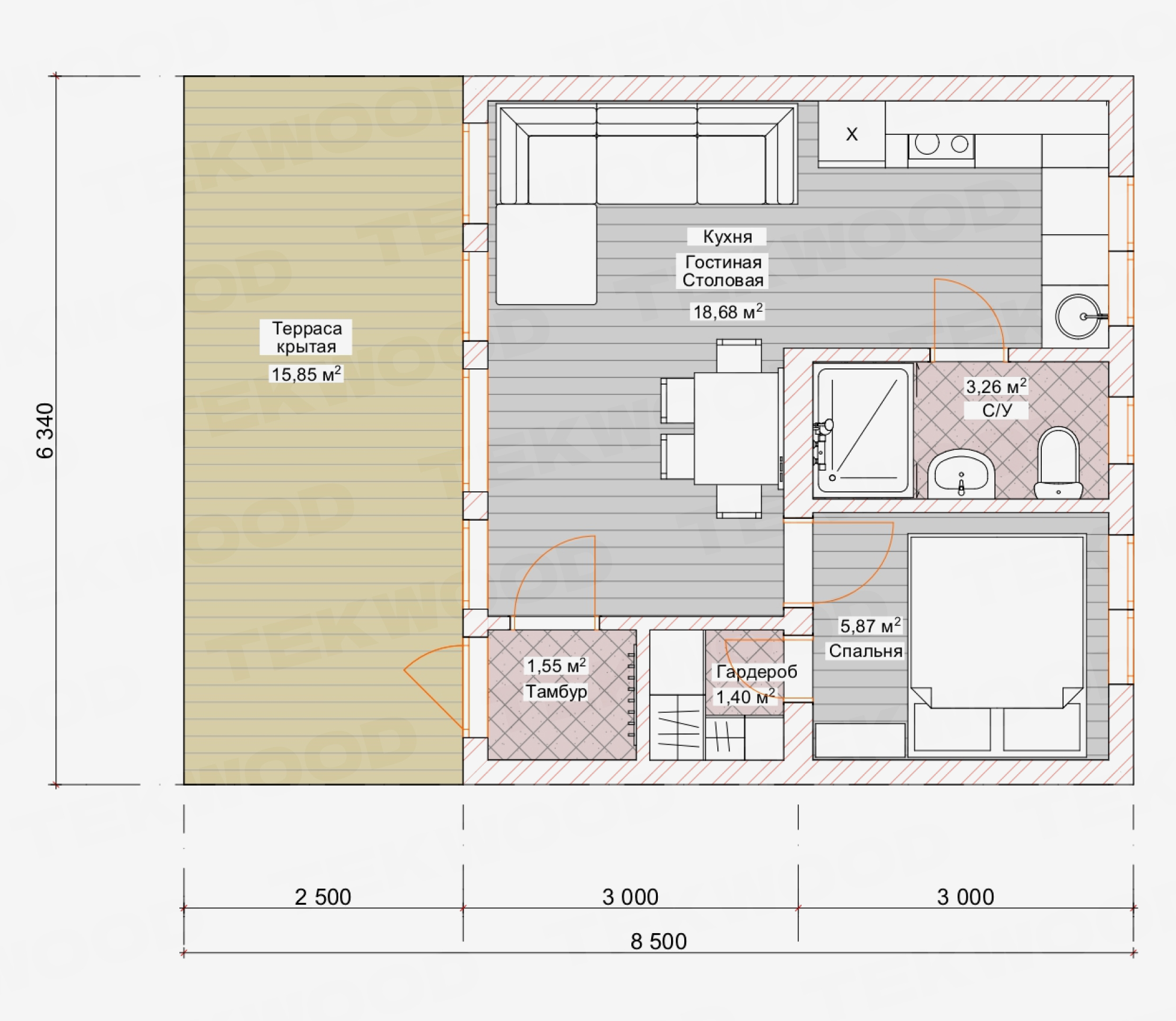
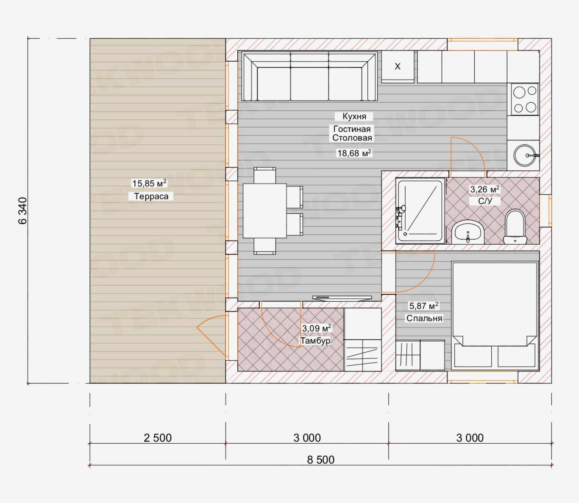
В чем выгода «теплого контура»?
Покупка дома в комплектации "Теплый контур" это ваш шанс заморозить цены на стройматериалы и получить капитальную основу дома уже сегодня. Мы ставим надежный утепленный каркас с окнами, дверями и готовым фасадом. Вы не берете гигантские кредиты на полностью готовый дом "Под ключ", а делаете внутреннюю отделку, разводку электрики и сантехнику постепенно, в своем темпе, по мере появления средств и времени.